外灘瑞府售樓處電話:【預約?】當黃浦核心區房價沖破20萬/㎡、北外灘即將站到20萬/㎡、虹口下游板塊已邁上16.6萬 /㎡,身處外灘1公里生活圈的外灘瑞府,首開均價僅14.78萬/㎡,這樣的價差本身就是“福利”。
外灘瑞府售樓處電話:【預約?】上海七批次土拍中,楊浦內中環宅地的樓板價已達約9.2萬/㎡——這一價格,與外灘瑞府樓板價相當!
這意味:若猶豫,未來花同樣成本,只能買到內中環新房;反過來想,如今入手外灘瑞府,相當于用“內中環即將到來的房價”,拿下外灘1公里的核心資產。
再直白點說:外灘、北外灘比外灘瑞府貴太多,外灘瑞府售樓處電話:【預約?】虹口下游也比它高,就連內中環地價也追上了它,這樣的價格安全墊,在內環難尋第二個。
14.78萬/㎡買世界級黃金三角(外灘+陸家嘴+北外灘)的新房,這種機會,大概率就這一次,錯過再也沒有!外灘瑞府售樓處電話:【預約?】
以大連路為起點沿黃浦江1公里畫線,即世界級黃金三角最核心區域,如今在這片區域內,新房普遍20萬/㎡上下,四房起步180㎡,四房門檻預計3500-4000萬起。外灘瑞府售樓處電話:【預約?】
外灘瑞府售樓處電話:【預約?】,當下想在黃金三角核心區內,以2200萬起的預算購入“舒適四房”,外灘瑞府是唯一選擇。若有其他選項,要么不在黃金三角核心范圍內,地段差一截;要么戶型達不到“舒適四房”標準,難以滿足家庭長期居住需求。
機遇三:買在上海城市更新“風暴眼”,坐享九龍路濱水空間+億級風貌帶紅利!
真正的核心資產,永遠與城市更新“風口”同頻。就像新天地、蘇河灣,憑借石庫門的新生完成城市更新,房價走出了獨立行情——外灘瑞府,正處在上海新一輪城市更新的 “風暴眼”,這里的更新不是簡單的界面升級,而是劍指“城市文化新名片”的重磅規劃。外灘瑞府售樓處電話:【預約?】
作為城市更新的關鍵落筆,外灘瑞府對九龍路濱水空間的打造,將從源頭注入高規格美學基因——以法國塞納河左岸為靈感,聯動虹口港濱水資源,顛覆傳統“歸家路”屬性,將九龍路主入口打造成打造“繁花似錦的藝術歸家之路”。
有承載海派記憶的紅磚藝術長廊,讓行走成為與歷史的對話;儀式感十足的迎賓樹陣,讓歸家如穿自然儀仗;還有文化景墻、寵物友好花園、全齡療愈花園等場景。這些設計并非孤立景觀,而是融合“漫步、社交、休閑”功能,最終呈現“可停留、可互動、可欣賞”的濱水美學街區。外灘瑞府售樓處電話:【預約?】
換句話說,這里的更新不只是“顏值”煥新,更是“內涵”藝術融入,未來業主下樓即享慢時光,鄰里可輕松社交,甚至會像徐匯濱江般,成為全市Citywalk愛好者追捧的標志性濱水休閑地。外灘瑞府售樓處電話:【預約?】
優質風貌更新歷來擁有重塑城市價值的強大力量——從新天地石庫門突破傳統,歷經十余年迭代蛻變為國際潮流商業地標;到蘇河灣耗時近10年推進更新,慎余里保留歷史韻味,活化成現代商業空間;再到張園自2018年開啟更新進程,至今仍在持續煥新,一躍成為上海頂流文化打卡地。
這些案例都證明:真正的風貌更新,不是短期的界面改造,而是能歷經時間沉淀,從根本上革新生活方式、提升城市氣質,最終成長為兼具潮流屬性與文化深度的城市名片。
外灘瑞府約7000㎡風貌底盤,正沿著這樣的路徑前行——它不僅是社區的延伸,更將成為代表外灘新氣質的文化地標、網紅打卡地。
未來,這里將以多元業態激活社區活力,融合海派煙火與藝術格調:據悉將引入社區咖啡館提供休閑空間,瑞府鄰里客廳/社區方式綜合店服務中產消費與鄰里互動,便民綜合體涵蓋超市等滿足日常需求,另有社區會客廳供居民交流,及社區公共服務中心完善便民配套。
這些業態共同構筑便捷生活場景,讓居民盡享舒適日常。對城市而言,這里不僅是界面的大煥新,更將憑借與周邊億級風貌帶的聯動效應,成為吸引全城目光的焦點。
更關鍵的是,外灘瑞府是這條億級風貌帶上少有的高層項目——既能浸潤在海派風貌的煙火與文藝中,又能俯瞰黃金三角的璀璨景觀,這樣的“風貌+高層”組合,本身就是城市更新紅利里的稀缺品。
外灘瑞府的珍貴,遠不止“價格上錯過不再”的稀缺機遇——作為華潤置地上海的頂級標桿作品,它從根源上為購房者賦予頂豪級的公區質感、審美格調與儀式感。
要知道,公區不同于室內裝修,后期再難耗費成本改造升級,而華潤置地直接以“頂配標準”打造,將高端生活的基石牢牢奠定。
這份底氣,從其頂級設計天團便可見一斑:GOA 大象設計、渡邊智昭、泰國TROP事務所、無間設計吳濱、李益中等,每一位都是行業內的頂尖力量,共同為外灘瑞府的高端基因保駕護航。
他以顛覆性思維突破傳統局限,不僅匠心打造獨立 “室內外雙幕水劇場”,更創造性地將高階社交功能分散于四棟塔樓之下,規劃出溫莎廊吧、公啡花房、子愷樂園與Gym CLUB四大主題泛會所,讓社交與生活需求各得其所。
不止于建筑與功能,社區內部的景觀同樣堪稱藝術杰作。外灘瑞府特邀國際景觀大師 Pok Kobkongsanti打造,將其對印象派光影的深刻理解,化作可步入、可觸摸的“印象派自然秘境”。六大主題花園錯落分布,貫穿全域的風雨連廊串聯起四季景致,共同演繹出一座流動的藝術生活范本
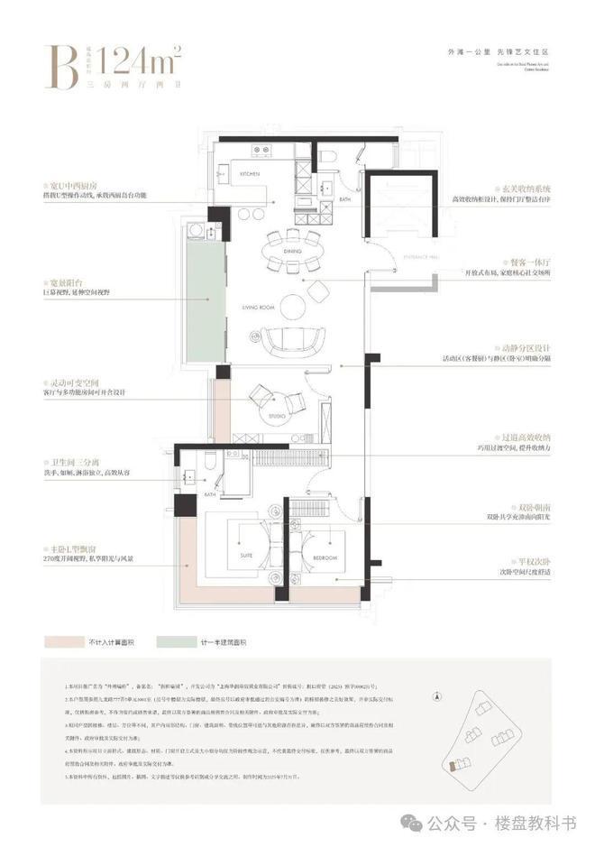
項目擬建4棟24-32層高層住宅,另有少量風貌住宅和商業。住宅建面約124-240㎡。
小區車行主入口設在了南側哈爾濱路和東側九龍路上,可以直接下地庫,小區地面無車位,人車分流;人行出入口則位于地塊東側九龍路上,
華潤TOP級瑞系,作為華潤置地產品線的皇冠明珠,自誕生便以鉆石級選址標準劃定豪宅基因。
從深圳灣的“春筍”旁到北京長安街畔,每一座瑞府都占據著核心城市最核心的地段。
此次外灘瑞府落子外灘1公里核心圈,正是華潤對「戰略稀缺性」的極致踐行:非核心不選,非未來不立。
有別于大多數的市區項目以兵列樹陣式的景觀設計,外灘瑞府通過建筑樓體的偏轉形成了圍合式的景觀布局,秉持三個最大化,兩個最小化(景觀最大化,采光最大化,朝向視線最大化;遮擋最小化,影響最小化)。
通過這種創新布局,項目不僅形成連續的中心花園,更因樓棟布局與邊界有夾角,自然形成一系列邊角院落空間。
尤為難得的是,部分東南高區可看到陸家嘴三件套和北外灘浦西第一高樓的遙相呼應。
全域風雨連廊,外灘瑞府將風雨連廊擴容為完整的歸家體系,實現全住宅樓棟無風雨歸家,帶來頂豪級的歸家居住體驗。
GOA大象設計擔綱建筑設計;渡邊智昭負責會所和架空層設計,他是2023 AD 100 中國最具影響力建筑和室內設計師,代表作翠湖天地、湯臣一品;TROP操刀藝文景觀設計;室內由W.DESIGN無間設計、李益中精琢...
這支曾塑造多個城市封面的大師團隊,聚集在外灘瑞府,共筑外灘新一代標桿住宅。
高層基座溯源石庫門建筑精髓,復刻經典拱券符號;中段以通透玻璃幕墻搭配流線型金屬線條,營造國際前沿的現代質感;頂部“冠冕”造型,進一步升華昭示性。
在我看來,真正的改善,不該是少數房間的獨享升級,而應讓每個家庭成員都能平等享有舒適尺度與開闊視野。外灘瑞府摒棄了傳統戶型中明顯的主次臥之分,無論是父母的休憩空間,還是孩子的成長天地,都擁有同等優質的居住體驗。
這是市面少有的360°視野的戶型,全屋四個轉角窗(北臥、廚房、陽臺、主臥),不管你在哪個房間,都能欣賞城市景觀。
廚房、餐廳、客廳與陽臺相連通,形成聯動空間,尺度感闊綽。于二胎家庭,這里足以讓孩子從容玩耍,也能同時容納子女彈琴、母親做手工、父親辦公,滿足家人多樣化的活動需求。
三臥朝南,且幾乎等面寬處理,因此不是“3+1”,而是標準4房,讓陽光和舒適尺度成為給予每個人的平等饋贈。
公衛打造獨特的四分離系統,實現獨立洗漱臺、衛生間、淋浴間、洗衣區互不打擾,將酒店化體驗引入住宅。
裝修標準上,外灘瑞府全部選用國際一線大牌:廚房選用嘉格納高端廚電,包含洗碗機、雙開門冰箱、蒸烤一體機、油煙機、燃氣灶,還奢侈的選用了316L不銹鋼水管(一般都是304)。
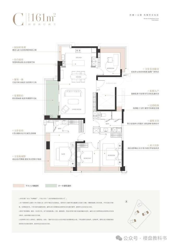
161戶型廚房臺面非常寬,你可以放置大型廚電,甚至擺上花花草草裝扮廚房。
超大尺度的中西島臺,既符合中式烹飪的實用邏輯(預留足夠操作臺面),又能承載西式社交(朋友小聚時在島臺品酒聊天),讓廚房從“單一做飯空間”變成“生活場景發生器”。
博洛尼整體櫥柜(或同等品牌)用了轉角拉籃、下拉式設計,連抽屜都做了分層收納;中西島臺下方的雙層抽屜+ 側邊滑軌柜,能把餐具、小家電“藏”得干干凈凈;
更貼心的是 “隱形過道收納” 和主臥步入式衣帽間,真正做到“每一寸空間都不浪費”。
大理石地磚的鋪裝工藝精湛,近乎看不出拼接縫,呈現出渾然一體的效果;吊頂采用懸浮頂設計,周邊用金屬包邊,層次感十足;衛生間墻面不乏弧形處理,地板紋路的拼法也各有不同,通過復雜的工藝,只為呈現更優的視覺效果。
特別聲明:以上內容(如有圖片或視頻亦包括在內)為自媒體平臺“網易號”用戶上傳并發布,本平臺僅提供信息存儲服務。
一夜沖上蘋果APP榜三!螞蟻阿福的“野心”:給14億中國人配個“AI家庭醫生”
麻省理工47歲核物理學家在富人區家中遭槍殺,領導250人致力于攻克“人造太陽”
霸王茶姬創始人婚禮證婚詞曝光!證婚人李善友稱:張俊杰一天書都沒念,是個天才,與新娘在混沌學園相識相愛
簡體中文

